Finding your way around a college campus can be a challenge, especially if it’s your first time visiting. Having a reliable map can make all the difference in navigating the various buildings and facilities. This is where the LBCC campus map comes into play.
The LBCC campus map is designed to help students, staff, and visitors easily locate classrooms, offices, and amenities. With clear markings and detailed information, it ensures you won’t get lost during your visit.
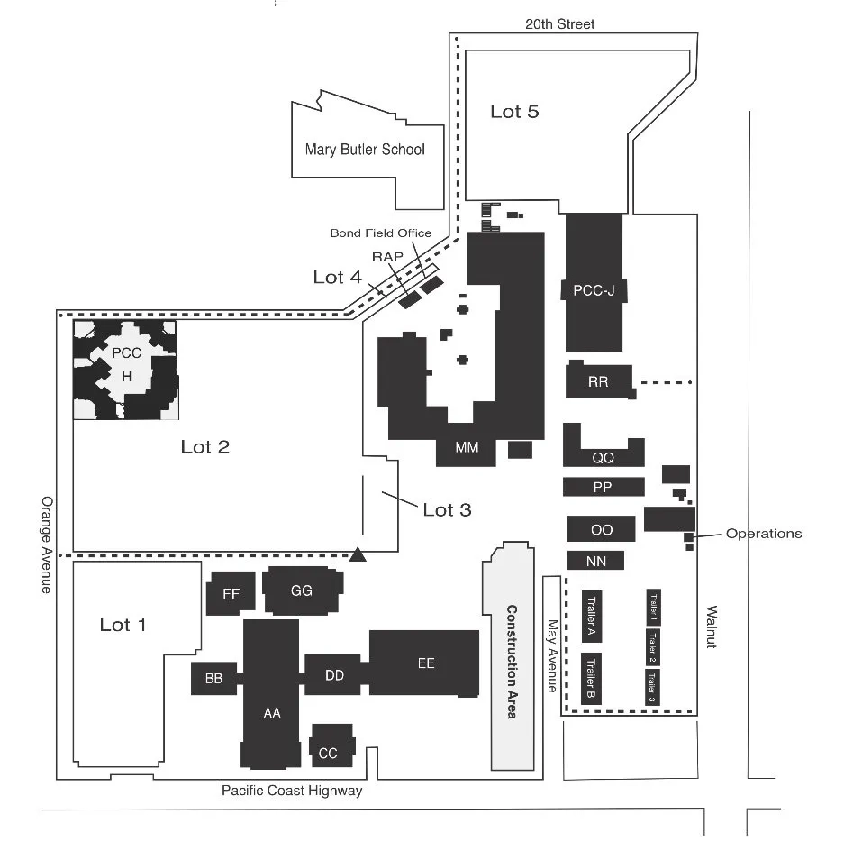
lbcc campus map
Understanding the LBCC Campus Map
The LBCC campus map features various sections that highlight important areas such as libraries, dining halls, and recreational facilities. Each building is labeled clearly, making it easy to find what you need without any hassle.
Additionally, the map includes parking areas and accessibility options. This is particularly helpful for those who may have mobility challenges or are unfamiliar with the campus layout. Knowing where to park can save you time and stress.
For new students, familiarizing yourself with the LBCC campus map can enhance your overall experience. It allows you to plan your route to classes and discover other resources available on campus. Exploring becomes much easier when you know where everything is located.
Moreover, the LBCC campus map is available online and can be accessed via mobile devices. This means you can have it at your fingertips whenever you need it, ensuring you’re always on the right track.
In conclusion, utilizing the LBCC campus map is essential for anyone visiting or studying at the college. It simplifies navigation and enhances your experience by helping you find everything you need with ease. Don’t forget to check it out!
Student Housing Coming To Long Beach City College Urbanize LA
Go Pass Ridelbt Long Beach Transit
Long Beach City College Proactive Engineering
Long Beach City College Dedication Rogervanhook




