Exploring a new campus can be both exciting and overwhelming. Having a reliable map can make all the difference in navigating your way around. For students and visitors at LBCC, understanding the layout is essential.
The LBCC campus is designed to be user-friendly, but knowing where to find specific buildings and facilities can save you time. A detailed map helps you locate classrooms, libraries, and recreational areas easily.
lbcc map of campus
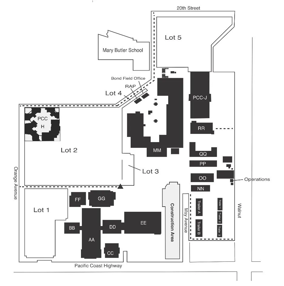
LBCC Map of Campus
The LBCC map of campus provides a comprehensive overview of all essential locations. From academic buildings to student services, the map highlights everything you need to know for a smooth experience.
One of the key features of the LBCC map is its clear labeling. Each building is marked with its name and number, making it easy for newcomers to find their way. This clarity helps reduce confusion during busy class schedules.
Additionally, the map includes important amenities such as parking lots, dining options, and restrooms. Knowing where these facilities are located can enhance your overall campus experience and ensure you’re never caught off guard.
For those who prefer digital navigation, LBCC offers an online version of the campus map. This interactive tool allows users to zoom in on specific areas and get directions to their desired locations in real-time.
Having access to the LBCC map of campus is invaluable for both students and visitors. It not only aids in navigation but also enhances your overall experience by making it easier to explore everything LBCC has to offer.
Student Housing Coming To Long Beach City College Urbanize LA
Go Pass Ridelbt Long Beach Transit
Long Beach City College Proactive Engineering
Long Beach City College Dedication Rogervanhook




